Planimetria 2D Arredata
Planimetrie professionali arredate per presentare gli spazi ai tuoi clienti.
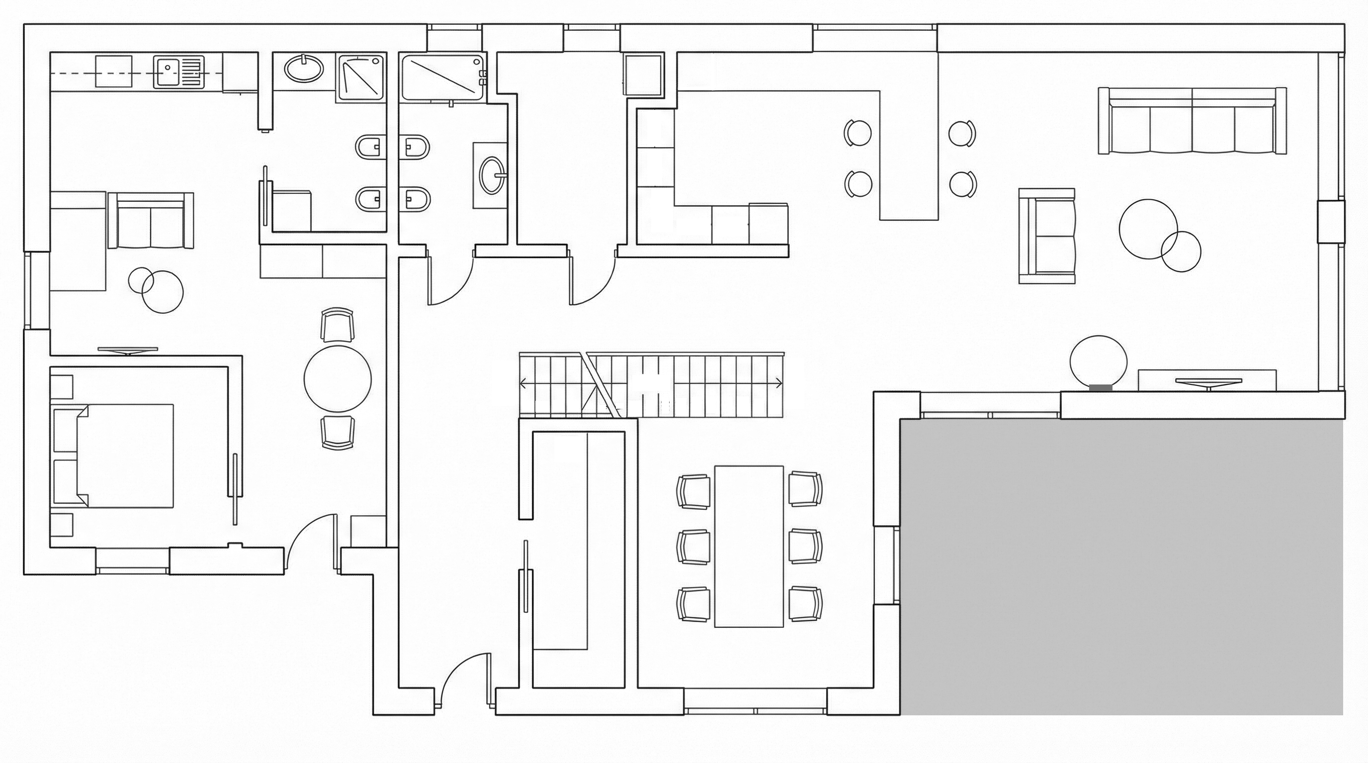
Cos'è la Planimetria Arredata?
La planimetria 2D arredata è una rappresentazione professionale della pianta dell'immobile con mobili e arredamento, che aiuta i potenziali acquirenti a comprendere la disposizione e le dimensioni degli spazi.
Ideale per annunci immobiliari, brochure, presentazioni e portali come Immobiliare.it e Idealista. Una planimetria arredata rende l'annuncio più professionale e aumenta l'interesse degli acquirenti.
Il nostro servizio trasforma la planimetria catastale o un semplice disegno in una planimetria arredata professionale con colori, mobili e proporzioni accurate. Consegna in 24 ore a partire da 19€.
Come Funziona
Carica la planimetria
Invia la planimetria catastale in PDF, foto o screenshot
Noi la trasformiamo
Il nostro team crea la versione arredata con mobili e colori professionali
Ricevi il risultato
Planimetria arredata in alta risoluzione entro 24 ore
Esempi di Planimetrie
Planimetrie arredate professionali per diversi tipi di immobili



AI + controllo del designer
Ogni rendering AI passa per la revisione di un designer professionista prima di essere consegnato. Non è solo automazione, è qualità verificata.
- Correggiamo errori AI tipici: mobili che fluttuano, prospettive sbagliate, texture incoerenti
- Verifichiamo che lo stile sia coerente con quello richiesto
- Se il risultato non convince, lo rifacciamo prima della consegna
Prezzi Planimetria
Domande sulla Planimetria
Basta la planimetria catastale o un disegno con le misure principali. Possiamo lavorare anche da foto delle stanze.
In formato PDF e JPG ad alta risoluzione, pronta per l'uso su portali e brochure.
La consegna standard è entro 24 ore dall'invio dei dati. Per progetti urgenti, contattaci per verificare la disponibilità.


